THE POOL HOUSE とは
リゾート空間住宅の「プロスパーデザイン」が展開する
民泊ができるプールのあるヴィラ
1分で分かる ザ・プールハウス
BASIC PLANのご紹介
宿泊可能な「THE POOL HOUSE」
TOKYO BAY
KISARAZU
ODAWARA
メリット
エリアにより、ご提供できるサービスが異なります。詳しくはお問い合わせ下さい。
THE POOL HOUSE パッケージAプランの主な仕様
【建 物】木造2階建3LDK 室内床面積約115㎡(約35坪)→ 広さは、ご希望によりカスタマイズ可能です。
【土 地】300㎡(約90坪)→ 土地大きさや形状によりカスタマイズ可能です。
・オーナーズルーム → 1階だけでストレスなく愉しむことが出来ます。
・シンプルなユニット構成 → LDKエリアとサニタリーエリア、主寝室と3ユニットで構成されています。
・8~10人の宿泊が可能 → 複数家族やグループが気兼ねなく泊まれます。
※男女の友人同士や、別の家族も過ごせるよう各部屋に洗面・シャワールームを設置しています。
レイアウトは可変可能
ベーシックプランのユニット空間を組み合わせることにより、様々な敷地形状や使用目的にあった部屋や空間を自由にカスタマイズすることが可能です。
ベーシックプラン
宿泊人数を増やしたい。
大人数で広々と楽しみたい。
プライバシーを保ちたい。
THE POOL HOUSE ベーシックプラン
ALL in ONE AMENITY and SERVICE
ラグジュアリープール※1
ジャグジー
サウナ
備 品
パーゴラ※2
屋内家具
屋外家具※2
家 電
フェンス
ドッグランコーナー
ヤシ(植栽)
防犯カメラ
サイン
許認可手数料等
設計料及び開業準備費等
OTHER SELECT AMENITY
ファイヤーピット
ミストプール※3
ソーラーシャワー※4
プロジェクター
太陽光発電
その他プールアメニティはご要望に応じて設置いたします。
※1:温水化可能/ヒートポンプ・ソーラーシャワー ※2:アルケマデザイン/テーブル・チェアー・屋根付 ※3:真夏の清涼&幻想的なプール景観 ※4:アルケマシャワー
事業収支シミュレーション
お客様の建築場所や設計プランに応じて、事業収支シミュレーションをご提案いたします。収益物件として自己使用以外の期間で経費計上ができます。減価償却は、短期間(木造22年、外構10年など)で行うことができます。
全員が建築士であること
プールハウスの設計スタッフは、すべて建築士です。建築的な目線でさまざまなサポートをいたします。単に家の庭にプールを置くという単純な発想ではなく、プールがお客様にもたらす心理的・身体的効果を最大限発揮できるようなご提案をいたします。
ワンストップ対応
自社のスタッフが、土地探しから企画・設計・施エ・アフターメンテナンスまでワンストップのご対応でプールハウス建設のお手伝いをさせていただきますので、複数の業者打ち合わせや担当者入れ替わりもなく、スムーズに施工計画が立てられます。
最初から最後まで
不動産スタッフがお客様のご予算ご要望に応じて、土地探しからお手伝いします。プールハウスに適した土地かどうか?大きさや周辺環境など、建築士のアドバイスにより、最初から最後まで全てのご提案をいたします。
コーディネイトもおまかせ
インテリア・家具などもご要望により提案させていただきます。お客様のお好きなデザインテイストを十分にヒアリングさせていただき、コーディネーターと一緒に家具だけでなく、建物の内装・外装デザインを含めプールハウスを造り上げていきます。
万全のアフターケア
当社は、フランス「マジライン社」製プールの総輸入販売元です。プールの専門スタッフが直接プールの設計や施工を行っています。そのため完成後の建物はもちろんプールについてのアフターメンテナンスやリニュールのご相談など、安心してご利用いただけます。
エキスパート集団
プロスパーデザインはこれまで約30年間、一級建築士事務所として心地よいリゾート空間を目指し、住宅・別荘・セカンドハウス・リゾートマンション・ホテル・保養施設など様々な建築作品により、高評価をいただいてるエキスパート集団です。
エリアにより、ご提供できるサービスが異なります。詳しくはお問い合わせ下さい。
ザ・プールハウス 東京ベイ(千葉県習志野市茜浜)
THE POOL HOUSE TOKYO BAY
宿泊予約は、こちらから(CHILLNN)
パンフレットのダウンロードはコチラ(pdf)
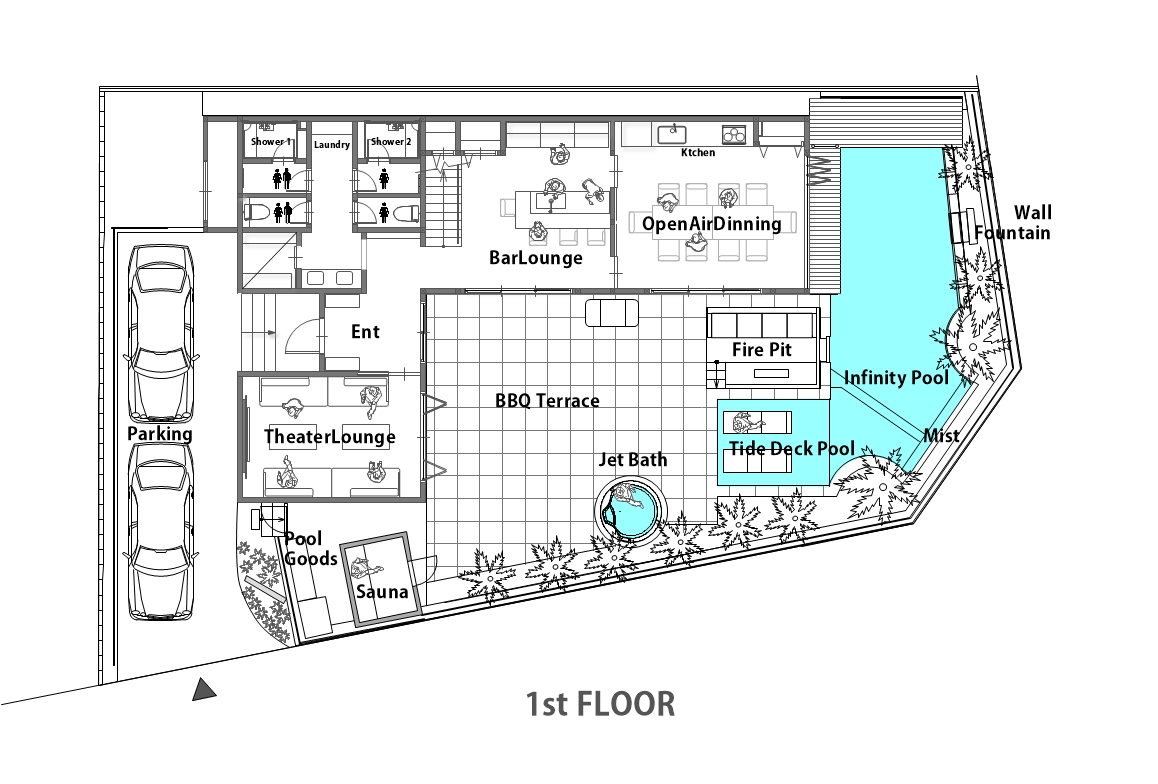
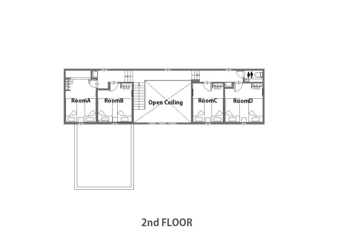
4LDK、木造2階建て、延べ床面積:154㎡、インフィニティ温水プール・サウナ・ジャグジー・ファイヤーピット・オープンエアダイニング・シアターラウンジ・バーラウンジ、宿泊最大定員:12名(シングルベッド×4、セミダブルベッド×4)、日帰り最大定員:20名
ザ・プールハウス 小田原
THE POOL HOUSE ODAWARA
宿泊予約は、こちらから(Airb)
パンフレットのダウンロードはコチラ(pdf)
ODAWARA(神奈川県小田原市南町)
5LDK、木造2階建て、延べ床面積:151㎡、プール・デッキテラス・BBQテラス・バーラウンジ・ラナイ、宿泊定員:最大8名
「THE POOL HOUSE ODAWARA」ご利用者の高い評価 平均4.86(5点満点)※2024年
利用目的:グループ旅行 星評価:★★★★★
質問に対しての回答が常にスムーズ、かつ丁寧で安心して過ごせました。設備も写真通りで充実していて、終始楽しい時間でした!また、ぜひ利用させていただきたいと思っています。オススメです!
利用目的:グループ旅行 星評価:★★★★★
本当に最高の宿泊体験でした!設備は綺麗で最新。プールやお風呂・トイレ、全てにおいて文句のつけどころはありません。パーフェクト!本当にありがとうございました。来年ぜひまた訪れたいです。
利用目的:お子様連れで滞在 星評価:★★★★★
とてもステキな時間を過ごさせていただきました。全て揃っていて持っていくのは食材と着替えだけです。とっても満足です!普段なかなか集まらない家族で貸切を満喫させてもらい、とてもよい思い出になりました。
利用目的:お子様連れで滞在 星評価:★★★★★
プールハウスは、いつでも自由に使えるプライベートプールを備えています。東京からのちょっとした休暇にぴったりでした!この家は全く新鮮な感覚で素晴らしいです! ぜひまた訪れたいと思います!
エリアにより、ご提供できるサービスが異なります。詳しくはお問い合わせ下さい。
下記リンク先に詳細が表示されます。








































